Description du bien
Matera vous propose en exclusivité ce bel appartement 5 pièces baigné de lumière, à deux pas du pont Mirabeau.
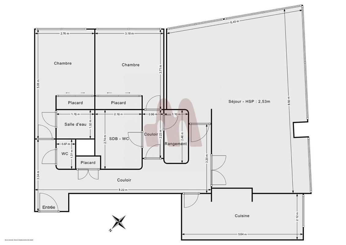
Situé en étage élevé au sein d'une grande et belle copropriété 1975, venez découvrir cet agréable appartement composé d'une belle entrée avec placards, triple séjour (possibilité d'y refaire la 3ème chambre), cuisine aménagée et équipée (possibilité US), deux chambres avec placards, un dressing, une salle de bains avec WC, une salle d'eau et un WC séparé.
Appartement à rafraîchir, offrant de vastes volumes et un très beau potentiel.
Exposé sud, sud-est et sud-ouest, vous profiterez d'une luminosité constante tout au long de la journée, avec une vue imprenable sur les toits de Paris et sur la Seine, majoritairement sans vis-à-vis et à proximité immédiates de nombreux commerces :
- Centre commercial Beaugrenelle : 2 minutes à pied.
- Transports : métro Javel (ligne 10) et RER C à 3 minutes à pied.
- Nombreux commerces de proximité : Monoprix, Auchan, pharmacie, boulangerie... à 5 minutes.
- Nombreux restaurants et terrasses à moins de 10 minutes à pied.
Résidence confort, sécurisée avec gardien 24h/24, sécurité incendie. Chauffage urbain CPCU
Ascenseurs
Ravalement effectué en 2024.
Charges : 750€/mois, comprenant : eau froide, eau chaude, chauffage, entretien, ascenseur, gardien.
Une cave complète ce bien.
Possibilité de reprendre la location de la place de parking en sous-sol dans l'immeuble, accessible par ascenseur.
Taxe foncière 2024 : 2.604 €.
Votre conseiller Matera : Pantéa Shafa
Agent commercial (Entreprise individuelle)
En savoir plus
Vos informations ont été transmises, l’agent vous recontactera dans les meilleurs délais.
Une erreur s'est produite.
Merci d'essayer à nouveau.
Merci d'essayer à nouveau.
Budget & Charges
Charges fixes
Charges variables
i
Les honoraires sont à la charge de l'acquéreur
Les honoraires sont à la charge du vendeur
Prix moyens des énergies indexés en
2021
Prix
995000
€
Prix hors honoraires
text
€
Honoraires
TTC du prix hors honoraires
%
Frais de notaire estimés (8%)
text
€
Estimation du projet
text
€
Charges de copropriété
9544
€ / an
Facture d'énergie estimée
entre
1
et
2
€ / an
Estimation des frais annuels
text
€/an
Caractéristiques du bien
5
pièce
s
3
chambre
s
Cave
1973
544
lots
Procédures syndicale
Charges de copropriété
30
étage
s
11
e
étage
Ascenseur
Jardin
Dépense énergétique
Performance énergétique (DPE)
A
B
C
D
E
F
G
Émissions de gaz à effet de serre (GES)
A
B
C
D
E
F
G
Année de construction
1973
Source d’énergie
Type de chauffage
Ce bien vous est proposé par

Pantéa Shafa
Agent Matera Transactions
Matera SAS, ayant son siège social 8 Cité Paradis 75010 Paris - RCS de Paris n°825 188 576 - Titulaire de la carte professionnelle n°CPI75012022000000632 et d’une garantie financière de 110 000 € pour son activité de transaction, souscrite auprès du Groupe Français de Cautionnement dont le siège social est 7 Chemin de la Dhuy 38240 MEYLAN.
Contacter l’agent














